金沢市西念2丁目にございますインターネット無料物件です!
こんにちは!
クラスコ金沢けやき通り店 山根 です。
今回ご紹介させて頂く物件はこちらでです!
【外観】
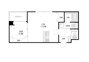
【間取】
【内装】
【設備】◇コンロ2口以上◇対面キッチン◇システムキッチン◇クッキングヒーター◇独立洗面台◇シャンプードレッサー◇冷暖房◇給湯(ガス)◇室内洗濯置場◇TVインターホン◇バルコニー◇シャワー◇浴室換気乾燥機◇追い焚き◇角部屋◇トランクルーム◇温水洗浄暖房便座◇クローゼット◇照明器具◇フローリング◇バス・トイレ別◇エレベータ◇駐輪場◇オートロック◇BSアンテナ◇インターネット月額利用料込み◇地上波デジタル放送対応
こちらは金沢市西念2丁目にございます1LDKの物件です。
毎月のインターネット使用料無料となっております。ルーターをご準備して頂ければWi-Fi環境でのネットも使い放題です!
また、オートロック物件ですので、防犯面も安心です!セキュリティ面を気にする女性の方には嬉しいですね♪
さらに、金沢駅まで徒歩約13分と、金沢駅までもアクセスしやすい立地です!
スーパーやコンビニも近いので生活しやすさを重視される方にもおすすめできます!
こちら是非ご内見して頂きたい物件なので、ご内見ご希望の方は株式会社クラスコ 金沢けやき通り店までお越し下さいませ!
ー・-・-・-・-・-・-・-・-・-・-・-・-・-・-
物件名:ブロードエイト西念603号室
住所:石川県金沢市西念2丁目17-12
賃料:73,000円
共益費:7,000円
ー・-・-・-・-・-・-・-・-・-・-・-・-・-・-
みなさまのご来店、スタッフ一同こころよりお待ち申し上げております。
◆取り扱い店舗◆
株式会社クラスコ 金沢けやき通り店
住所:石川県金沢市西念4丁目24-21
TEL:076-233-3010
FAX:076-233-3080
MAIL:keyaki@crasco.jp





































