全室角部屋!閑静な住宅街に位置する2K物件です!
こんにちは!
クラスコ小松店の幅田(はばた)です。
本日はこちらのお部屋をご紹介いたします。
物件名:メゾン・ド・サーラ
こちらは小松市大領中町にございます、軽量鉄骨造の賃貸物件です。
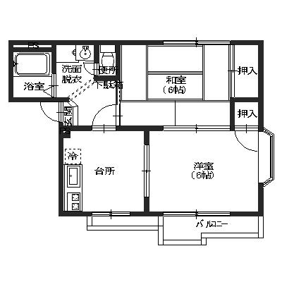
閑静な住宅街に位置するお手頃な2Kで、全室角部屋となっております!
生活スタイルを選ばない、使いやすい間取りがおすすめポイントです★
*東病院:徒歩4分(250m)
*アルビス小松幸町店:徒歩10分(750m)
*スギ薬局小松南店:徒歩8分(600m)
※また、ご不明な点や直接お聞きになりたいことがございましたら、
下記ご連絡先よりお問い合わせ頂ければと思います。
※詳しい写真や資料などは、下記物件詳細画面からもご覧いただけます。
少しでも興味をもたれた方はお気軽に小松店までお問合せください!
『物件名』
メゾン・ド・サーラ 205号室
詳細ページは ★こちら★
『住 所』 石川県小松市大領中町1丁目243-3
『間取り』 2K
『賃 料』 40,000円
『共益費』 3,000円
『敷 金』 -
『礼 金』 -
『駐車料』 3,300円(税込)
『町 費』 -
『入居時期』即入居可
『設 備』
●TVインターホン ●温水洗浄便座 ●ネット使い放題 ●バス・トイレ別 ●独立洗面台
●追い焚き付きお風呂 ●トランクルーム ●エアコン付 ●照明器具付 ●駐車場あり
★取り扱い店舗★
スタッフ一同、心よりお待ちしております!

(株)クラスコ アパマンショップ 小松店
住所:石川県小松市園町ハ126-1
TEL0761-20-2626
FAX0761-21-2626




































