駅西エリアにございますリノベーション済み1LDK物件です!
こんにちは!
クラスコ金沢けやき通り店 井澤(いざわ)です。
本日は、金沢市西念3丁目ににございます物件をご紹介させていただきます!
サン・アムール英 102号室(クリックで詳細をご覧になれます。)
【外観】
【内観】
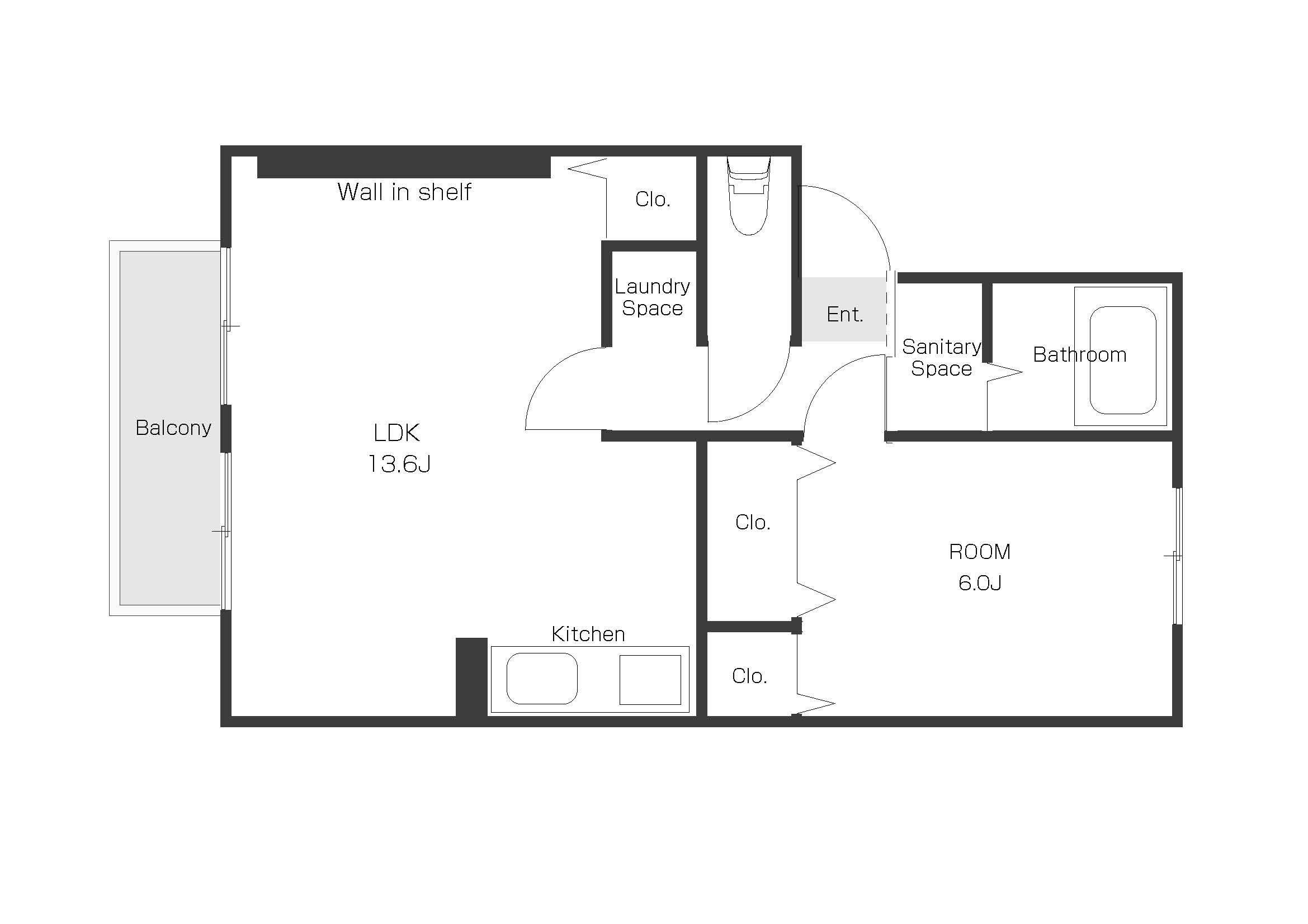
【間取り】
こちらは金沢市西念3丁目にございます、1LDK物件です!
内装はリノベーションされており、おしゃれな空間になっております!エアコンが2基完備されているのが嬉しいポイントですね!
また、13,6帖と広々としたリビングには大きなテレビ台も付いております!
周辺にはコンビニやショッピングモールもございます!生活しやすい立地環境ですね!
☆ファミリーマート 金沢西念三丁目店 徒歩約3分(約270m)
☆クスリのアオキ 西念店 徒歩約4分(約280m)
☆アル・プラザ金沢 徒歩約5分(400m)
『物件名』
『住所』
石川県金沢市西念3丁目25-15
『間取り』
1LDK
『賃料』
57,000円
『共益費』
3,500円
『敷金』
11,4000円
『礼金』
-円
『駐車料』
4,400円
『設備』
◎TVインターホン ◎専用庭 ◎駐輪場 ◎シャワー ◎シャンプードレッサー ◎室内洗濯機置き場 ◎独立洗面台 ◎バス・トイレ別 ◎温水洗浄暖房便座 ◎フローリング ◎冷暖房 ◎照明器具 ◎クローゼット ◎シューズボックス ◎駐車場2台可 ◎ガスコンロ設置可 ◎トランクルーム ◎CATV ◎バルコニー ◎デザイナーズ ◎リノベーション物件 ◎リフォーム済み
非対面でのご案内もしておりますのでお気軽にお申しつけ下さい!!
気になる方はぜひ一度、株式会社クラスコ けやき通り店までお越しくださいませ。
みなさまのご来店、スタッフ一同こころよりお待ち申し上げております。
◆取り扱い店舗
株式会社クラスコ けやき通り店
住所:金沢市西念4-24-21
TEL:076-233-3010










































![102[1]](https://www.crasco.jp/information/wp-content/uploads/2022/12/1021-300x212.jpg)