泉本町2丁目の閑静な住宅街の2DK!新婚さんにぴったりな賃貸物件です♪
こんにちは。
クラスコ 横川店 地嶋(ちしま)です。
今回は、金沢市泉本町の賃貸物件をご紹介いたします。
↑↑↑ここをクリック!クラスコナビのHPへジャンプします。
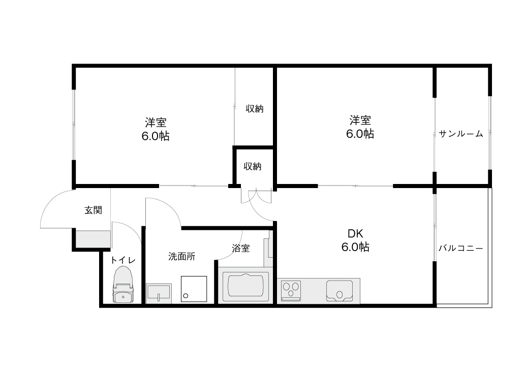
【外観 間取り】
【内装】
賃料:49,000円
共益費:3,000円
駐車場:4,400円(税込)
2DKの物件で広々とご利用頂きたい単身の方・新婚様おすすめの間取りです!
玄関には、シューズボックスを備えているため、玄関が靴で狭くなることを防げます。
トイレも温水洗浄暖房便座となっており、寒い冬でもお身体を冷やしにくいですね!
TVモニター付きインターホンがあり、玄関扉を開けずに来訪者の方が誰が来たのか
分かり安心のセキュリティー設備となっております。
サンルームもバルコニーもございますのでお天気の良し悪しに関わらず
お洗濯をすることができます!
周辺環境と致しましては
・MEGAドン・キホーテ ラパーク金沢店 約850m
・ファミリーマート 金沢泉本町店 約350m
・山崎皮膚科医院 約300m
・金沢市立清泉中学校 約300m
こちらのお部屋のご内見・ご予約は、お気軽に
株式会社クラスコ 横川店まで!
インターネット予約はこちら!(←ここをクリック)
みなさまからのお問い合わせ、スタッフ一同こころよりお待ち申し上げております。
◆取り扱い店舗◆
クラスコ 横川店
住所:石川県金沢市横川4-188
石川県内仲介件数 9年連続NO.1 株式会社クラスコ
(賃貸住宅新聞社調べ 仲介件数ランキング)




































